800.367.6515
9:00 AM to 5:30 PM Office Closed
Menu

11265 McDowell Shortcut Rd. $679,900

MLS#: 2607056
Address: 11265 McDowell Shortcut Rd.
City / Zip: Murrells Inlet, SC 29576
Type: Residential / Detached

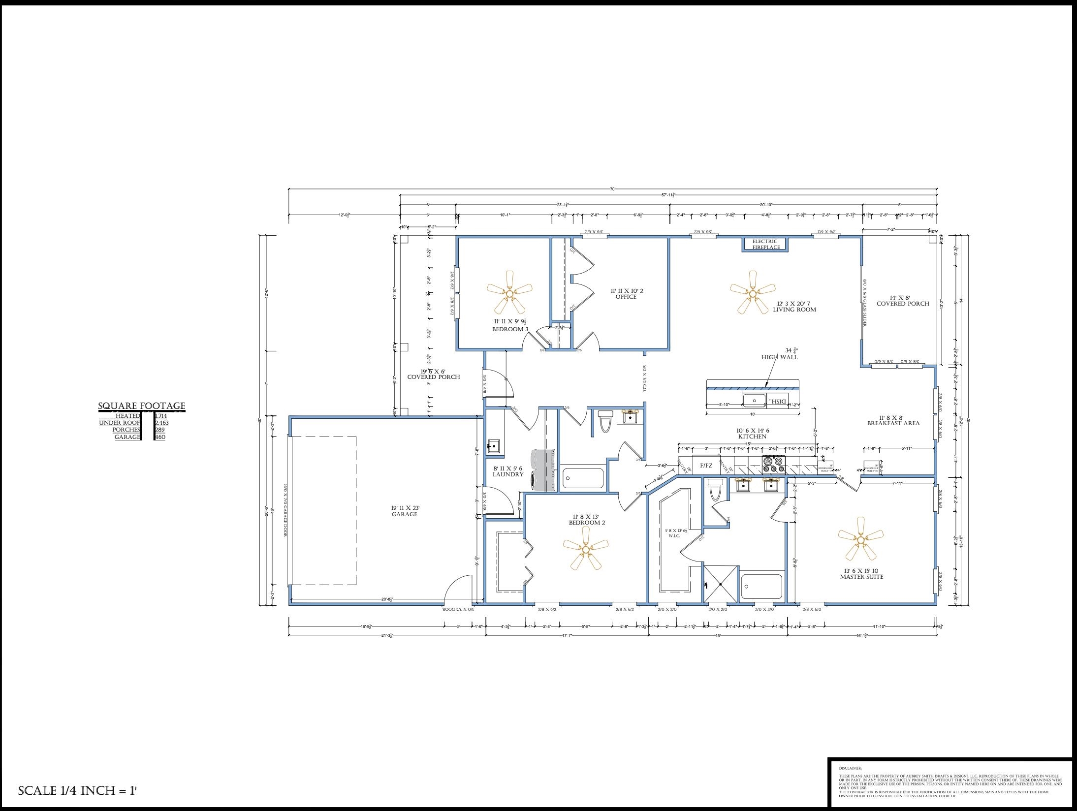
1714

SQ Ft

3

Bedrooms

2

Bathrooms

Overview

Click the main image above for larger images

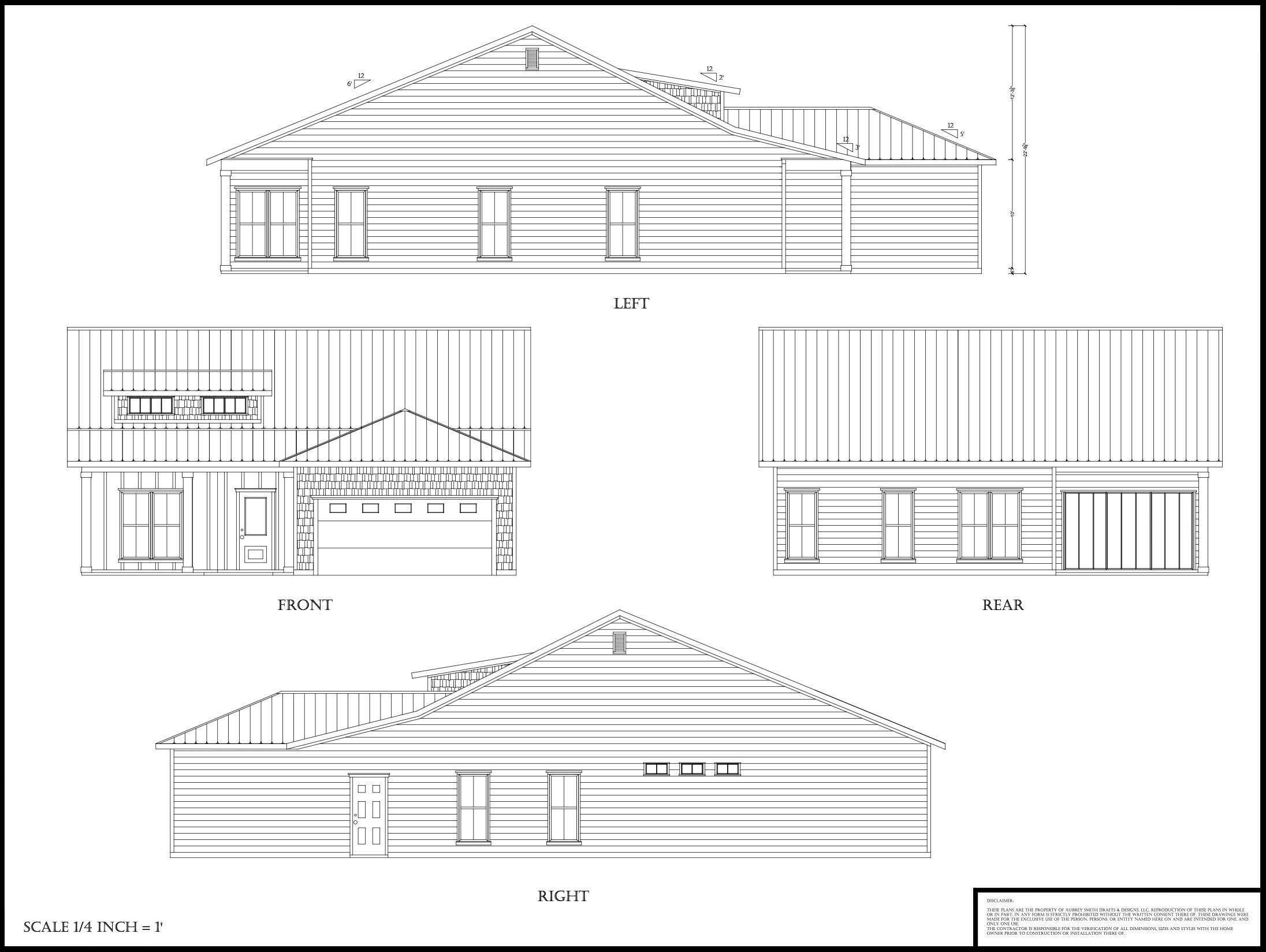
Introducing a beautifully designed to-be-built semi-custom home that perfectly blends modern farmhouse charm with high-quality craftsmanship all with no HOA restrictions. Breaking ground on April 1st with an estimated completion date of August 1st, this home offers the opportunity to personalize select finishes while enjoying a thoughtfully curated design. This thoughtfully designed home features 3 bedrooms, 2 bathrooms, and a dedicated office/flex space, offering versatility for work, guests, or additional living needs all within 1,714 square feet of well-planned space. The exterior showcases a striking combination of clean lines, board-and-batten siding, and a durable 29-gauge metal roof, creating both timeless appeal and long-lasting performance. Custom architectural accents, including the pergola detail over the garage, add depth and character to the façade. Inside, you’ll find a focus on comfort and style with custom cabinetry, premium finishes, and custom accents throughout. The primary suite is designed as a private retreat, featuring a luxurious custom tile shower paired with a relaxing soaker tub. Enjoy outdoor living year-round on the screened-in rear porch, perfect for entertaining or unwinding in a peaceful setting. This semi-custom build offers flexibility, quality, and modern design all without the limitations of an HOA. Secure your opportunity early and bring your vision to life in this exceptional new home.

This listing is provided courtesy by Dominic Siciliano, Keller Williams The Forturro G

Mapp

Map may not be 100% accurate.

Amenities

    Property Amenities

    • Interior Features

      • Bathtub
      • Ceiling Fan(s)
      • Dual Sinks
      • Fireplace
      • Garden Tub/Roman Tub
      • Main Level Primary
      • Other
      • Split Bedrooms
      • Separate Shower
      • Vanity
      • Walk-In Closet(s)
      • Breakfast Bar
      • Bedroom on Main Level
      • Breakfast Area
      • Kitchen Island
      • Stainless Steel Appliances
      • Solid Surface Counters
    • Flooring

      • Luxury Vinyl
      • Luxury VinylPlank
      • Tile
    • Appliances

      • Dishwasher
      • Freezer
      • Disposal
      • Microwave
      • Range
      • Refrigerator
      • Range Hood
    • Cooling

      • Central Air
    • Heating

      • Central
      • Electric
    • Foundation

      • Slab
    • Parking

      • Attached
      • Garage
      • Two Car Garage
      • Garage Door Opener
    • Porch / Balcony / Deck

      • Porch
      • Screened

Want To Know More About This Listing?

Leave this field empty

Fill out the form below to get more information.

*
*
*
*
*

Additional Information

Nearby Schools Mortgage Calculator