800.367.6515
9:00 AM to 5:30 PM Office Closed
Menu

TBB7 Duford Rd. $397,900

MLS#: 2601663
Address: TBB7 Duford Rd.
City / Zip: Nichols, SC 29581
Type: Residential / Detached

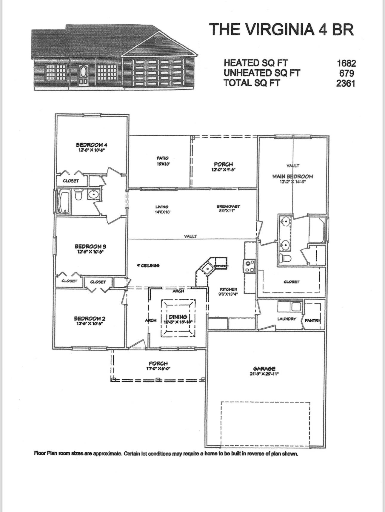
1682

SQ Ft

4

Bedrooms

2

Bathrooms

Overview

Click the main image above for larger images

Large 2+ acre lot with no HOA. New Homes, Builder WILL Customize. The Virginia 4 BR Plan features a relaxing front porch, covered rear porch, and patio. Open floor plan, vaulted ceiling in living room. Large kitchen has solid wood cabinets with crown molding, walk in pantry, stainless steel appliances (microwave, smooth top stove, dishwasher). Formal Dining area, and a breakfast nook. Split bedrooms-Main bedroom suite has vaulted ceiling with ceiling fan, large walk-in closet. Main Bathroom has double sinks in raised vanity height, 5' walk in shower, linen closet. Guest bedrooms and bath on the opposite side of the house. Waterproof, wood-look luxury vinyl plank flooring throughout with carpet in the bedrooms. Spacious finished/painted 2 car garage with automatic door opener, pull downstairs to attic storage above. Photos are for illustrative purposes only and may be of similar home built elsewhere, may show upgrades. Square footage is approximate and not guaranteed. Buyer is responsible for verification. Listing agents are the land owners

This listing is provided courtesy by Dave Pursley, Bulldawg Property Sales LLC

Mapp

Map may not be 100% accurate.

Amenities

    Property Amenities

    • Interior Features

      • Attic
      • Pull Down Attic Stairs
      • Permanent Attic Stairs
      • Split Bedrooms
      • Stainless Steel Appliances
    • Utilities

      • Septic Available
    • Flooring

      • Carpet
      • Luxury Vinyl
      • Luxury VinylPlank
    • Sewer

      • Septic Tank
    • Exterior Features

      • Porch
      • Patio
    • Parking

      • Attached
      • Garage
      • Two Car Garage
      • Boat
      • Garage Door Opener
      • RV Access/Parking
    • Porch / Balcony / Deck

      • Rear Porch
      • Front Porch
      • Patio

Want To Know More About This Listing?

Leave this field empty

Fill out the form below to get more information.

*
*
*
*
*

Additional Information

Nearby Schools Mortgage Calculator