800.367.6515
9:00 AM to 5:30 PM Office Closed
Menu

TBD65 Privetts Rd. $381,400

MLS#: 2601209
Address: TBD65 Privetts Rd.
City / Zip: Conway, SC 29526
Type: Residential / Detached

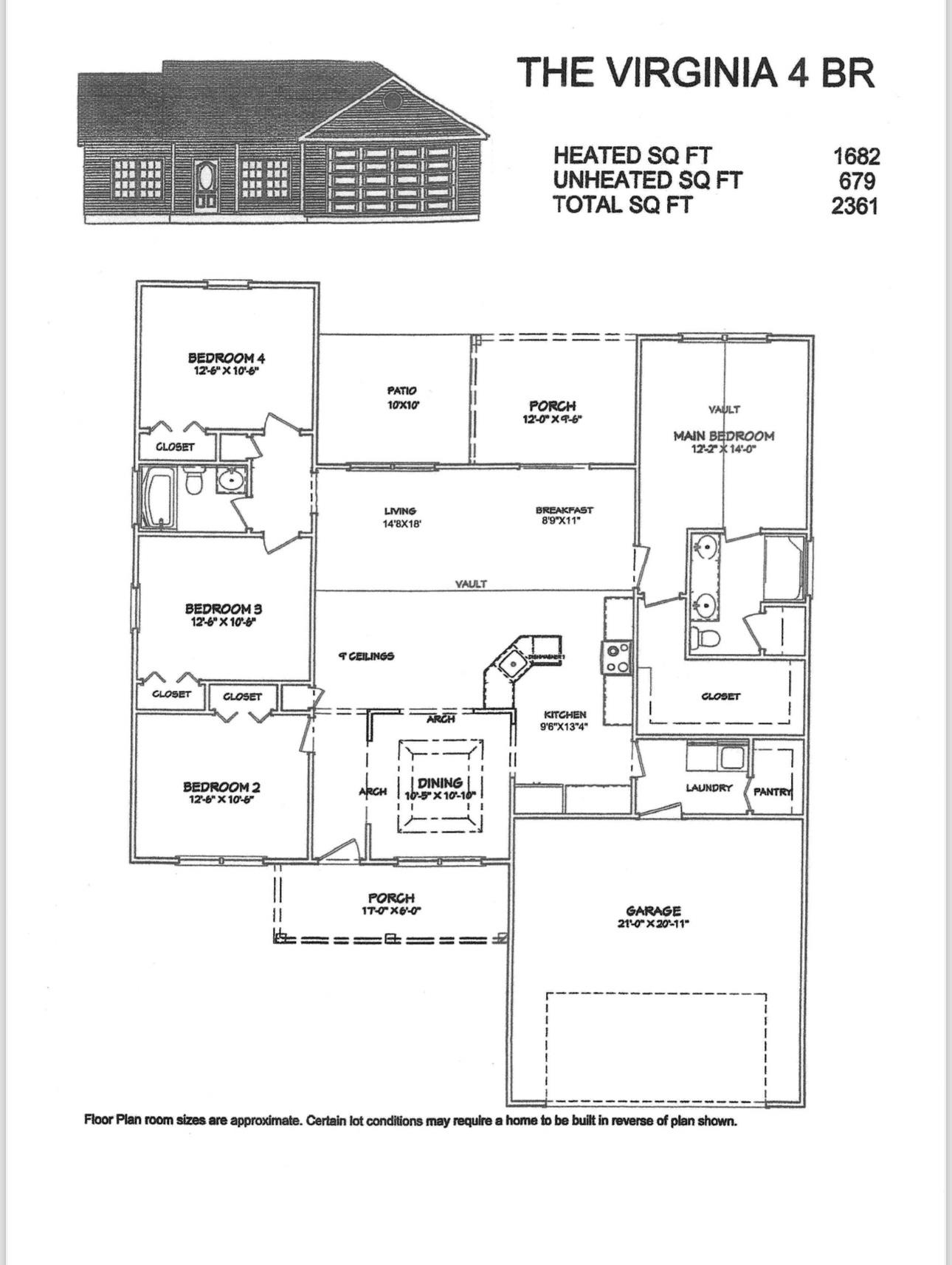
1682

SQ Ft

4

Bedrooms

2

Bathrooms

Overview

Click the main image above for larger images

Large 1.50 acre size lot with no HOA and No Deed Restrictions. New Homes, Builder WILL Customize. The Virginia 4 BR Plan features a relaxing front porch, covered rear porch, and patio. Open floor plan, vaulted ceiling in living room. Large kitchen has solid wood cabinets with crown molding, walk in pantry, stainless steel appliances (microwave, smooth top stove, dishwasher). Formal Dining area, and a breakfast nook. Split bedrooms-Main bedroom suite has vaulted ceiling with ceiling fan, large walk-in closet. Main Bathroom has double sinks in raised vanity height, 5' walk in shower, linen closet. Guest bedrooms and bath on the opposite side of the house. Waterproof, wood-look luxury vinyl plank flooring throughout with carpet in the bedrooms. Spacious finished/painted 2 car garage with automatic door opener, pull downstairs to attic storage above. Convenient location, with easy access to HWY 22. Photos are for illustrative purposes only and may be of similar home built elsewhere, may show upgrades. Square footage is approximate and not guaranteed. Buyer is responsible for verification.

This listing is provided courtesy by Jillian Pursley, Bulldawg Property Sales LLC

Mapp

Map may not be 100% accurate.

Amenities

    Property Amenities

    • Interior Features

      • Attic
      • Pull Down Attic Stairs
      • Permanent Attic Stairs
      • Split Bedrooms
      • Stainless Steel Appliances
    • Utilities

      • Septic Available
      • Water Available
    • Flooring

      • Carpet
      • Luxury Vinyl
      • Luxury VinylPlank
    • Sewer

      • Septic Tank
    • Exterior Features

      • Porch
      • Patio
    • Parking

      • Attached
      • Garage
      • Two Car Garage
      • Boat
      • Garage Door Opener
      • RV Access/Parking
    • Porch / Balcony / Deck

      • Rear Porch
      • Front Porch
      • Patio

Want To Know More About This Listing?

Leave this field empty

Fill out the form below to get more information.

*
*
*
*
*

Additional Information

Nearby Schools Mortgage Calculator