800.367.6515
9:00 AM to 5:30 PM Office Open
Menu

1001 TBB Hainer Place Dr $287,900

MLS#: 2607705
Address: 1001 TBB Hainer Place Dr
City / Zip: Conway, SC 29526
Type: Residential / Detached

1889

SQ Ft

3

Bedrooms

2

Bathrooms

Overview

Click the main image above for larger images

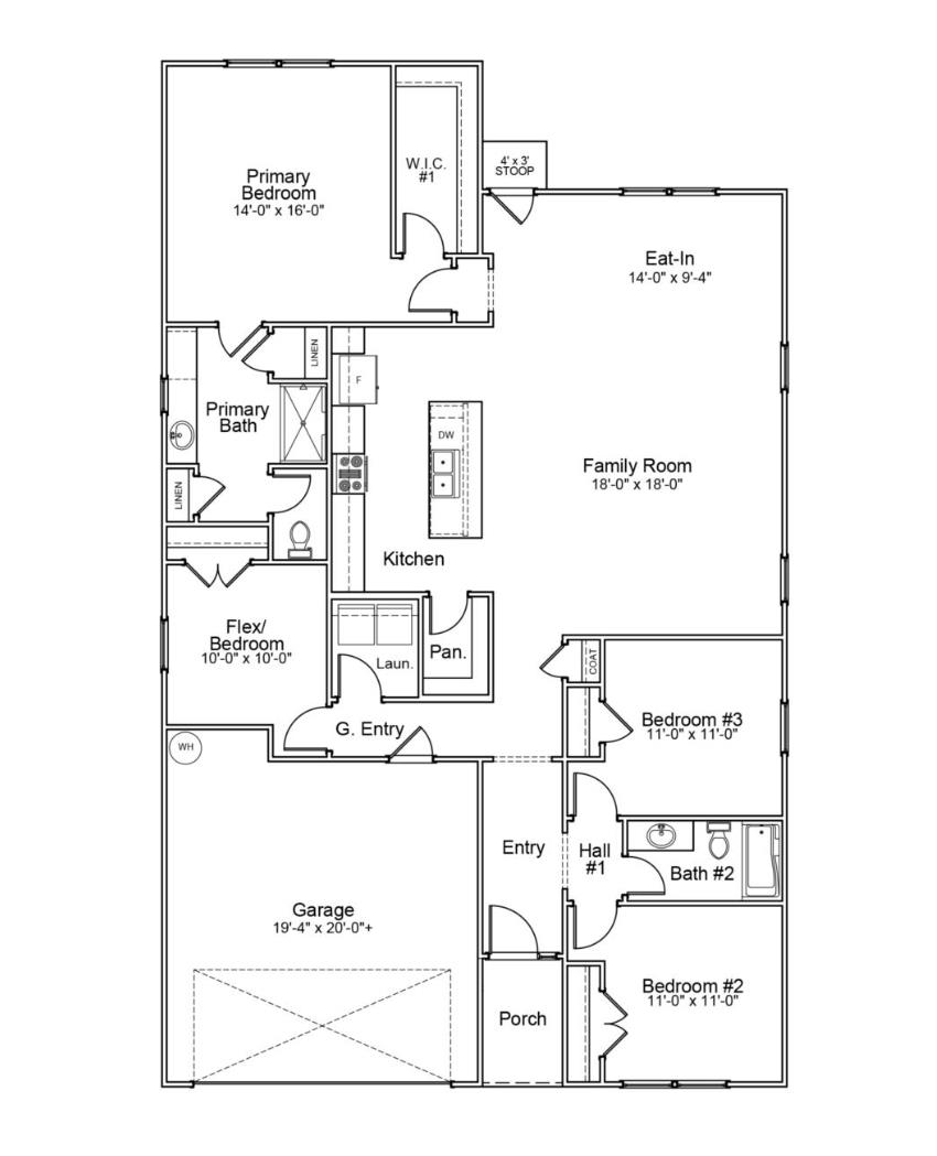
3-CAR GARAGE AVAILABLE The Gwinnett II is a one-story home featuring four bedrooms and two bathrooms. The kitchen is open to the great room and eat-in and features an island with breakfast bar, as well as a spacious pantry. The primary suite is located just off the great room and includes a large walk-in closet, two linen closets in the bathroom, and a water closet. Two secondary bedrooms and a bathroom are located at the front of the house. Another secondary bedroom is located off the garage entry for added privacy, making it the perfect place for guests or an office. Options for this home include an alternate layout for the first floor, fireplace, covered porch, and more. An additional 2nd floor with loft and/or guest bedroom is optional as well.

This listing is provided courtesy by Brian McGrath, CPG Inc. dba Mungo Homes

Mapp

Map may not be 100% accurate.

Amenities

    Property Amenities

    • Interior Features

      • Dual Sinks
      • Linen Closet
      • Main Level Primary
      • Walk-In Closet(s)
      • Breakfast Bar
    • Utilities

      • Cable Available
      • Electricity Available
      • Phone Available
      • Sewer Available
      • Water Available
    • Flooring

      • Carpet
      • Luxury Vinyl
      • Luxury VinylPlank
    • Appliances

      • Dishwasher
      • Disposal
      • Microwave
      • Range
    • Heating

      • Electric
    • Foundation

      • Slab
    • Exterior Features

      • Porch
    • Parking

      • Attached
      • Garage
      • Two Car Garage
    • Porch / Balcony / Deck

      • Rear Porch

Want To Know More About This Listing?

Leave this field empty

Fill out the form below to get more information.

*
*
*
*
*

Additional Information

Nearby Schools Mortgage Calculator