800.367.6515
9:00 AM to 5:30 PM Office Closed
Menu

704 Bramble Way Lot 38 Makenzie-II $299,990

MLS#: 2529852
Address: 704 Bramble Way Lot 38 Makenzie-II
City / Zip: Conway, SC 29527
Type: Residential / Detached

2002

SQ Ft

4

Bedrooms

2

Bathrooms

Overview

Click the main image above for larger images

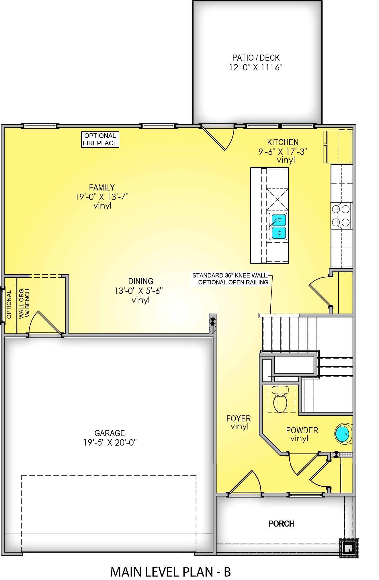
[] PRICE REDUCED!! Welcome to Briarfield Community. Introducing the Makenzie II-- a beautifully crafted two story home with all 4 bedrooms up. Powder Room off of entryway. Front and rear porches to enjoy the beautiful sunrises and sunsets. This 2-story home offers a large great room, stunning kitchen with stainless appliances, granite counters large island. The owners suite has a Tray Ceiling, 2 Walk In Closets. While the Owners Bath boasts a soaking tub and shower. All bedrooms are very spacious and have large closets. Laundry upstairs keeps life simple! Interior photos are of a re[resentative model.

This listing is provided courtesy by James Dombek, GSH Realty SC, LLC

Mapp

Map may not be 100% accurate.

Amenities

    Property Amenities

    • Interior Features

      • Tray Ceiling(s)
      • Entrance Foyer
      • Kitchen Island
      • Stainless Steel Appliances
    • Utilities

      • Cable Available
      • Electricity Available
      • Sewer Available
      • Water Available
    • Appliances

      • Dishwasher
      • Disposal
      • Microwave
      • Range
    • Heating

      • Electric
    • Foundation

      • Slab
    • Parking

      • Attached
      • Garage
      • Two Car Garage

Want To Know More About This Listing?

Leave this field empty

Fill out the form below to get more information.

*
*
*
*
*

Additional Information

Nearby Schools Mortgage Calculator