800.367.6515
9:00 AM to 5:30 PM Office Open
Menu

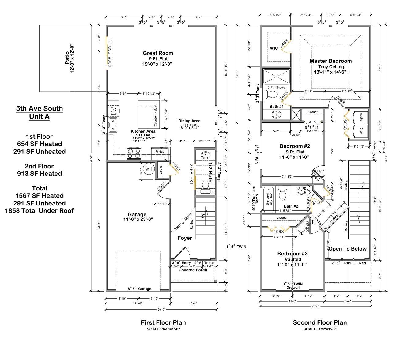
830 Whispering Tide Ct. Unit D $379,900

MLS#: 2521974
Address: 830 Whispering Tide Ct. Unit D
City / Zip: Myrtle Beach, SC 29577
Type: Residential / Detached

1567

SQ Ft

3

Bedrooms

2

Bathrooms

Overview

Click the main image above for larger images

Brand New Construction – Prime Myrtle Beach Location! Offering Seller Credit at Closing! Reach out for more details! Beautiful new construction home in a 6 Home development, located just 4 minutes by golf cart to the beach! 1,858 Total Sqft Featuring 3 bedrooms, 2.5 baths, a spacious open floor plan, and upgraded finishes throughout, this home is designed for comfort and style. Highlights include: Luxury flooring throughout Premium Counter Tops Tile Bathrooms and Shower Dining area and second-floor laundry Attached garage Pre-selling now! Estimated completion: Q1 2026. Don’t miss this opportunity to own a brand-new home or investment property in the heart of Myrtle Beach! Owner is a licensed real estate professional. Images are artist renderings; finishes and colors may vary.

This listing is provided courtesy by Amir Tal, HarborStone Realty LLC

Mapp

Map may not be 100% accurate.

Amenities

    Property Amenities

    • Interior Features

      • Breakfast Bar
      • Entrance Foyer
      • Kitchen Island
      • Stainless Steel Appliances
    • Flooring

      • Luxury Vinyl
      • Luxury VinylPlank
    • Appliances

      • Dishwasher
      • Disposal
      • Microwave
      • Range
    • Cooling

      • Central Air
    • Heating

      • Central
      • Electric
    • Foundation

      • Slab
    • Exterior Features

      • Patio
    • Parking

      • Attached
      • Garage
      • One Space
      • Garage Door Opener
    • Porch / Balcony / Deck

      • Patio

Want To Know More About This Listing?

Leave this field empty

Fill out the form below to get more information.

*
*
*
*
*

Additional Information

Nearby Schools Mortgage Calculator